| 一、使用条件 |
|
本产品适用于装有动静压轴承的磨机、轧钢机、电机等大型设备的稀油循环润滑系统中,其工作介质为N22~N320(相当于ISO VG22~VG320)的各种工业润滑油。 根据动静压润滑工作原理,在启动、低速和停车时用高压系统,正常运行时用低压系统,以保证大型机械在各种不同转速运行下均能获得可靠的润滑以延长主机寿命。 稀油站的高压部分压力为31.5MPa,流量为2.5L/min,低压部分压力为0.4MPa;流量为16~125L/min,稀油站具有过滤、冷却、加热等装置和联锁、报警、自控等功能。 该产品的性能参数及尺寸应符合表和图中的规定;装置由油站、仪表盘、电控柜(可用PLC控制)成套组成。 |
 |
| |
| 二、型号标注方法 |
|
|
| 如采用A系列,高压流量为2.5L/min;高压压力为31.5MPa,低压供油压力为0.4MPa;而低压供油量为40L/min的高(低)压稀油站,采用PLC控制的则按如下方法标注:GXYZ-A2.5/40.P |
| |
| 三、结构特点 |
本产品主要由油箱(其内装有磁网过滤器)、低压油泵装置、高压油泵装置、双筒网片式过滤器、手动高压油泵、冷却器、管道、阀门、仪表盘及电控柜等组成。 在主机启动前,先启动低压泵,当低压供油压力正常后,启动吸口联于低压管道上的高压油泵,高压油经高压单向阀送往静压轴承,当高压达一定值使主轴浮起时,主机就可启动、低速运行或停止;主机转速正常后,就可以停止高压泵(低速运行除外),但低压油泵必须正常供油;低压油泵从油箱吸油后经单向阀,双筒网式过滤器、冷却器后亦往静压轴承,维持主机正常供油;若主机停止后,尚要定时由高压泵和低压泵供油,则由时间继电器进行控制向润滑点断续供油。 高、低压力的具体数值分别由系统中的低压安全阀和高压溢流阀控制。 主机正常运行时,低压泵一台工作,一台备用,若系统压力下降到某值时,备用泵启动投入运行,达到正常压力时备用泵停止。若备用泵启动后压力仍下降到某一更低值时,就应发出报警讯号,考虑主机停车。 高压柱塞泵有故障时,可由备用手动油泵供油。 过滤器置于冷却器前,使粘度较小的油先通过过滤器,以提高过滤效果,过滤器一筒工作,一筒备用,由手动切换阀控制。 油箱油位过低过高时均由油位讯号器发讯,人工加油或停止加油。 回油油箱内设有磁网过滤器,能同时对油进行过滤和吸附油中铁质微粒。 稀油站成套供货时配有仪表和电控箱,以显示运行参数和实现稀油站自控、手控或报警。 油箱上装有电接点双金属温度计,油温低时发出信号,人工接通电加热器,达到设定温度时,自动切断电加热器。 供油口装有电接点压力式温度计,根据供油温度,调最高最低二个界限,用以控制冷却器的使用与否。 |
| |
|
GXYZ 型A 系列高(低)压稀油站技术性能 |
|
参数 |
型号 |
GXYZ-A2.5/16 |
GXYZ-A2.5/25 |
GXYZ-A2.5/40 |
GXYZ-A2.5/63 |
GXYZ-A2.5/100 |
GXYZ-A2.5/125 |
|
低 压 系 统 |
泵装置型号 |
LBZ-16 |
LBZ-25 |
LBZ-40 |
LBZ-63 |
LBZ-100 |
LBZ-125 |
|
流量L/min |
16 |
25 |
40 |
63 |
100 |
125 |
|
供油压力MPa |
≤0.4 |
|
供油温度℃ |
40±3 |
|
电动机 |
型号 |
Y90S-4,V1 |
Y100S-4,V1 |
Y112S-4,V1 |
|
功率KW |
1.1 |
2.2 |
4 |
|
转速r/min |
1450 |
1440 |
1440 |
|
油箱容积m3 |
0.8 |
1.2 |
1.6 |
|
高压系统 |
泵装置型号 |
2.5MCY14-1B |
|
流量L/min |
2.5 |
|
供油压力MPa |
31.5 |
|
电动机 |
型号 |
Y112M-6 B35 |
|
功率Kw |
2.2 |
|
转速r/min |
940 |
|
过滤精度m2 |
0.08~0.12 |
|
过滤面积m2 |
3 |
5 |
7 |
|
冷却面积m2 |
1 |
1.5 |
3.6 |
5.7 |
9 |
11.25 |
|
电加热功率Kw |
3 x 4 |
3 x 4 |
6 x 4 |
|
外形尺寸mm |
1820 x 1130 x 1320 |
1880 x 1220 x 1650 |
/ |
|
备注 |
全部过滤切换压差为0.15MPa | |
| |
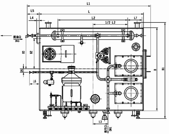
| 四、外形尺寸 |
|
|
|
|
|
图2-1-1 GXYZ 型A 系列稀油站外形图 |
| GXYZ 型A 系列稀油站外形尺寸 |
|
型号 |
DN1 |
DN2 |
DN3 |
DN4 |
L |
B |
H |
L1 |
L2 |
L3 |
L4 |
L5 |
|
GXYZ-A2.5/16 |
25 |
10 |
50 |
25 |
1250 |
1000 |
1000 |
1490 |
925 |
185 |
18 |
140 |
|
GXYZ-A2.5/25 |
|
GXYZ-A2.5/40 |
32 |
10 |
65 |
32 |
1400 |
1200 |
1050 |
1620 |
720 |
200 |
20 |
120 |
|
GXYZ-A2.5/63 | |
|
型号 |
L6 |
L7 |
B1 |
B2 |
B3 |
H1 |
H2 |
H3 |
H4 |
H5 |
H6 |
H7 |
|
GXYZ-A2.5/16 |
100 |
208 |
1230 |
360 |
420 |
1500 |
1132 |
853 |
150 |
350 |
70 |
78 |
|
GXYZ-A2.5/25 |
|
GXYZ-A2.5/40 |
100 |
276 |
1430 |
400 |
500 |
1550 |
1182 |
890 |
200 |
350 |
120 |
110 |
|
GXYZ-A2.5/63 | |
| |
| 五、原理图 |
|
|
|
图2-1-2 GXYZ 型A 系列稀油站原理图 |
|
GXYZ型外部端子接线图 |
|
|
| |
| 六、电控柜 |
|
|
|
序号 |
标牌文字 |
序号 |
标牌文字 |
|
1 |
出口油温 |
13 |
2#泵起动 |
|
2 |
1#泵工作 |
14 |
高压泵起动 |
|
3 |
2#泵工作 |
15 |
加热器起动 |
|
4 |
高压泵工作 |
16 |
备 用 |
|
5 |
加热器工作 |
17 |
1#泵停止 |
|
6 |
低压压力低 |
18 |
2#泵停止 |
|
7 |
高压压力低 |
19 |
高压泵停止 |
|
8 |
油 位 高 |
20 |
加热器停止 |
|
9 |
油 位 低 |
21 |
消除报警 |
|
10 |
压差过高 |
22 |
1#为主*单独*2#为主 |
|
11 |
出口油温高 |
23 |
中控/机旁 |
|
12 |
1#泵起动 |
|
| | |
| |
| 六、仪表盘 |
|
|
|
图2-1-4 GXYZ 型A 系列稀油站仪表盘 |
| |
| |
| |
|